QUESTÃO ANULADA!!
(AFA - 2008)
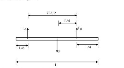
Uma viga homogênea é suspensa horizontalmente por dois fios verticais como mostra a figura abaixo.

A razão entre as trações nos fios A e B vale:
a)
b)
c)
d)
QUESTÃO ANULADA!!
MARQUE A ALTERNATIVA [C]
MARQUE A ALTERNATIVA [C]
PRÓXIMA QUESTÃO
MARQUE A ALTERNATIVA [C]
Gabarito:
PRÓXIMA QUESTÃO
RESPOSTA ESPERADA PELA BANCA:

Pela imagem:
A partir do somatório dos momentos em relação ao ponto de sustentação de B:
Substituindo a primeira equação na segunda, calculamos que:
Logo: